/Files/Images/Logo/Nordenta logo 2026_version2_500x104.jpg

Harald Tandlægerne Løgumkloster

"Jeg ønskede mig et moderne, stilrent og minimalistisk udtryk"

Harald Tandlægerne Løgumkloster blev en del af tandlægesammenslutningen Harald i september 2021 som led i et forestående generationsskifte. Samtidig trådte Line Bak Toft ind som klinikleder og partner efter at have været ansat på klinikken siden 2016.

Klinikken består af 6 klinikrum med 3 tandlæger, 2 tandplejere og 7 klinikassistenter.

Renoverings­projekt

En stor renovering af klinikken var en del af kontrakten med Harald, da inventar, units og øvrigt udstyr var af ældre dato, og klinikken generelt trængte til et æstetisk løft.

Renoveringen blev gennemført i sommeren 2022, og klinikken stod i august 2022 klar "i nye klæder".

Til venstre ses før-billeder fra klinikken.

Lines ønsker til indretningen

Line: ”Jeg elsker indretning, og allerede inden jeg med sikkerhed vidste, at jeg skulle overtage klinikken, gik jeg og forestillede mig, hvordan den kunne indrettes. Jeg fik en plantegning af huset og gik og tegnede videre på den.

Jeg ønskede mig et moderne, stilrent og minimalistisk udtryk. Hele klinikken har derfor fået hvide vægge og vinylgulve med sildebensmønster. I gangarealet har jeg valgt panellofter."

Venteværelse og reception​

Venteværelset, der tidligere var i et aflukke, er blevet åbnet op til et venteareal, hvor det er nemt at se, om patienten er ankommet.

En glasskillevæg med sorte sprosser i NewYorker-stil giver det æstetiske udtryk, som Line ønskede sig.

Siddepladserne i venteværelset udgøres af både lænestole, puffer og barstole ved vinduet, så patienten kan vælge den venteposition, der passer vedkommende bedst.

  • Gå to slide 1
  • Gå to slide 2
  • Gå to slide 3
  • Gå to slide 4

Klinikrum

Alle klinikrum har fået hvide vægge, sildebensgulv og en glasdør med matteret glas.

Der er til alle rum valgt XO units med cognacfarvet betræk, der fuldender det eksklusive look.

I modsætning til de tidligere klinikrum er unitten placeret med front mod døren.

I loftet over tandlægestolen er der placeret en TV-skærm, hvor der kører indhold, der får patient­erne til at slappe af og føle sig godt tilpas.

Fast inventar fra INFORM i hvidt, klassisk udtryk har erstattet mobile borde.

  • Gå to slide 1
  • Gå to slide 2
  • Gå to slide 3

Sterilisationen

Den tidligere sterilisation var ikke så skarpt opdelt i forhold til urent og rent gods.

Line: ”Nordentas udstyrskonsulent kom med et godt oplæg til en ny u-formet sterilisation, der understøtter det rigtige flow fra beskidt til rent til sterilt.”

Øvrige forbedringer

DAC’en er nedsænket for forbedret arbejds­stilling og ergonomi.

En større åbning ind til rummet gør det nemmere at passere hinanden.

Ved at sløjfe en ekstra dør til et depotrum bliver trafikken dirigeret uden om sterilisationen.

Et højskab i sterilisationen giver mulighed for at udnytte kubikmeterne i rummet og have et centralt placeret Favoritkøb-lagerskab.

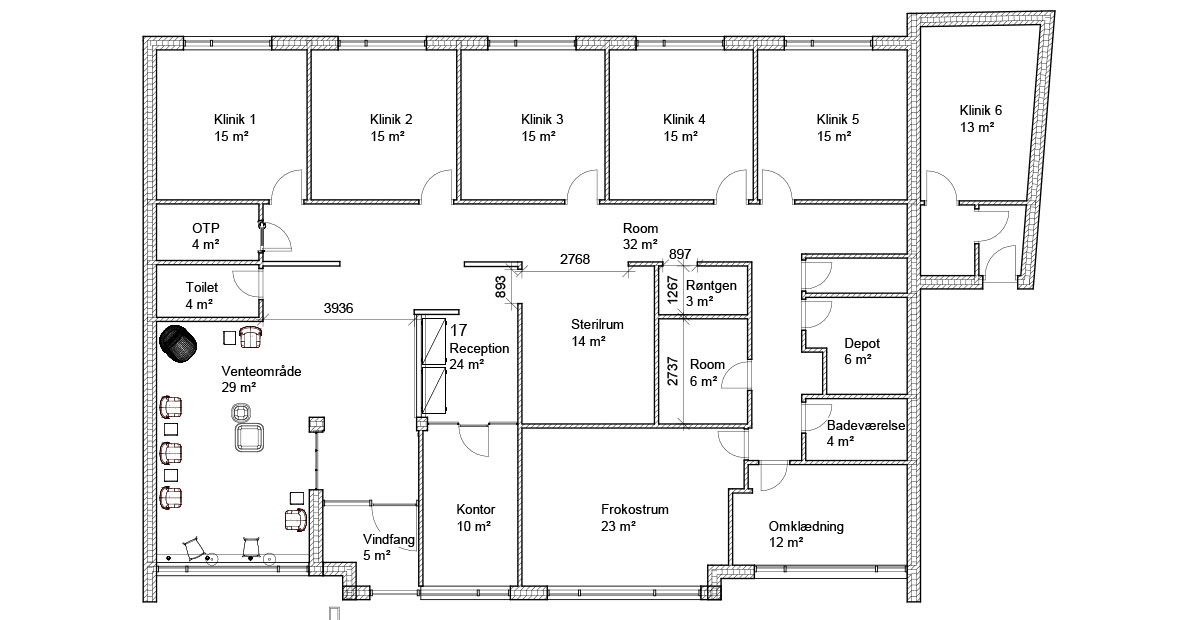
Plantegning

Arkitekt med i processen

Nordenta har indgået et samarbejde med arkitekt Thomas Hansen fra Areal Design, der kan bistå de klinikker, der ønsker hjælp fra en arkitekt.

Areal Design har erfaring med indretning af netop tand­klinikker og hjælper med alt fra design til projektstyring og skaber dermed helhed og overblik for dig som klinikejer.

Line: "Areal Design har været med inde over opbygningen i Løgumkloster. Vi fik besøg af Thomas, hvor vi gennemgik klinikken og fik sporet os ind på det udtryk, jeg ønskede. Han kom med gode input ift. akustik og lysindfald og alle de her ting, man ikke selv tænker over, når man ikke er arkitekt. Thomas har været god til at gribe mine idéer, som han har lavet til 3D visualiseringer. Jeg har været rigtig glad at have ham med på sidelinjen."

Thomas: "Jeg ønsker altid at skabe et design, der passer til den enkelte klinik. Jeg har fokus på projektplanlægning og -styring, der bl.a. sikrer mindst mulig lukketid for klinikken og overholdelse af budgetter.

Kontakt Nordenta for at høre mere om arkitekt-samarbejdet.

Samarbejdet med Nordenta

Da Line overtog klinikken fra den tidligere ejer i efteråret 2021 og trådte ind som partner i Harald, var det allerede aftalt, at klinikken skulle renoveres i sommeren 2022. Processen skulle derfor hurtigt sættes i gang.

Line: ”Da underskriften var sat, tog jeg fat i Nordenta, der har stået for alt med units, inventar, sterilisation mv. Konsulenten har været rigtig god til at komme med forskellige løsningsforslag og til at vise mig, de forskellige muligheder. De har gjort det rigtig godt.”

Indretning af klinikker i Harald

I Harald er der nogle overordnede retningslinjer for klinikindretning. Harald ønsker velholdte, præsentable og tidssvarende klinikker, der er indbydende for både personale og patienter. Derudover har man som partner temmelig frie rammer:

”Vi går ikke ned i et detaljeniveau. Vi er af den overbevisning, at det er den enkelte partner, der kender klinikken bedst og ved, hvad der vil fungere optimalt. Vores fokus er, at det skal være løsninger, der fungerer godt lokalt for både medarbejdere og patienter.”

Brian D. Schmidt, daværende adm. Direktør, Harald


Hovedkontoret tager sig af blandt andet af aftalevilkår og prisforhandlinger.

Vi hjælper gerne med at få dine indretningsdrømme til at gå i opfyldelse

Står du over for en ny indretning eller en større renovering af din klinik? Eller kunne du bruge et godt råd til din nuværende indretning?

Så står vi klar til at hjælpe dig.

Nordenta har indrettet klinikker siden 1990, og vi hjælper gerne med at finde den løsning og det udstyr, der passer bedst til din klinik.

Jens Petersen

Sjælland/Fyn
26 87 19 22
jkp@nordenta.dk

Mark Sørensen

Syddanmark/Sjælland
28 44 15 61
mos@nordenta.dk

Steffen Ulfkjær

Jylland
26 87 19 00
suh@nordenta.dk

Martin Overgaard

Nordsjælland og Storkøbenhavn
26 87 19 01
mo@nordenta.dk

Se flere indretningscases

Lindberg Tandlægeklinik - Risskov

Tandlægerne Duedahl-Skov - Espergærde

Se alle indretningscases

Vi har samlet alle vores indretningscases her.